Mobile Menu Toggle

Automated Broadband Designer

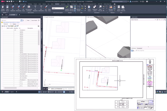
Automated Broadband Designer is a fiber design platform that works with the tools you already use, producing construction documentation you can trust. It’s a solution that adds transformational productivity to fiber deployment and helps you take projects from concept to completion faster.

Talk to us

Faster, smarter broadband design

Built on AutoCAD, Automated Broadband Designer applies your design and engineering standards to ensure accuracy and consistency across every project. You get:

  • Automated Bill of Materials (BOM) generation that saves hours of manual work
  • Simplified permit and construction package creation for faster project delivery
  • Seamless integration with GIS and EAM/ERP systems to eliminate manual data entry
  • Clean, consistent design data that improves accuracy across design and construction teams
  • Scalable, standards-based workflows that support the growing demand for broadband infrastructure

How it works

Automated Broadband Designer streamlines broadband network design from concept to completion, enabling you to automate repetitive tasks, enforce standards, and produce accurate, construction-ready packages.

Automated design tasks and BOMs

Eliminate repetitive manual work and increase productivity:

  • Automate design tasks to dramatically reduce drafting time and improve accuracy.
  • Place multiple design elements simultaneously using templates with built-in structural hierarchies.
  • Maintain a detailed Bill of Materials automatically throughout the design process, not manually after design is completed.

Configurable standards and rules

Rely on standards instead of code to ensure quality and compliance:

  • Configure design and engineering standards through simple, template-based setup. No programming required.
  • Use the built-in Rules Engine to automatically apply checks and validations during design.
  • Deliver consistent, compliant designs with minimal QA/QC effort.

Simplified drawing packages

Streamline permit and construction package preparation:

  • Maintain a 3D model that stays synchronized with your 2D design at all times.
  • Automatically generate callouts, annotations, details and notes directly from design data.
  • Produce permit and construction drawings based on pre-set standards and formats with no extra steps.

Enterprise integration

Connect critical systems to eliminate manual data entry:

  • Design with “GEO-enabled CAD” that uses real-world projections and coordinate systems for precise alignment.
  • Build using intelligent network models that include feature classes, attributes, specifications, relationships and connectivity.
  • Integrate seamlessly with GIS and ERP/EAM systems through model mapping and two-way data synchronization for all design changes.

From the blog

Introducing Automated Broadband Designer: Faster Fiber Design for a Connected Future

At SBS, we know the path to fast and reliable broadband service for everyone starts with better design. Today, we’re proud to introduce Automated Broadband […]
Read story

What’s New in AUD 9.1 and ABD 9.1

Smarter, Faster, and More Capable Design Tools The latest releases of Automated Utility Design (AUD) 9.1 and Automated Broadband Designer (ABD) 9.1 bring powerful new […]
Read story
1/2

Let’s talk about what’s possible.

We’ll show you how Automated Broadband Designer can help you save time, reduce rework, and design and deploy networks more efficiently.